REQUEST A TOUR 
  
$ 5
Est. payment | /mo
25,558 SqFt
$ 5
Est. payment | /mo
25,558 SqFt
Key Details
Property Type Commercial
Sub Type Industrial,Warehouse,Auto Dealer/Service,Mixed use
Listing Status Active
Purchase Type For Sale
Square Footage 25,558 sqft
Price per Sqft $0
MLS Listing ID 22500549
Year Built 1961
Property Sub-Type Industrial,Warehouse,Auto Dealer/Service,Mixed use
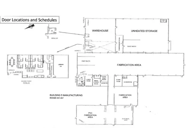
Property Description
Property Features ? Mix of open workstations & private offices and lunchroom ? Adjacent to walking path on Wisconsin River ? Building automation system - HVAC controls ? Ample parking with two driveway entrances allow for both car truck traffic Details Property borders the Wisconsin River along the west, the Canadian National Railroad track easement to the east and is just north of the I-39/Hwy 51 and Business Highway 51 interchange--allowing immediate access to four-lane highways in every direction. 
Location
State WI
County Marathon
Zoning Commercial
Interior
Heating Natural Gas
Cooling Hot Water, Forced Air
Exterior
Exterior Feature Brick, Brick/Stone, Wood
Roof Type Rubber/Membrane,Rubber/Membrane
Building
Dwelling Type Free Standing
Sewer Municipal Water
New Construction N
Copyright 2025 WIREX - All Rights Reserved
Listed by NAI PFEFFERLE








